• Proyectos
  • DTR_studio
  • News
  • Proyectos
  • DTR_studio
  • News
Instagram Linkedin
  • esp
  • eng
  • esp
  • eng
  • Proyectos
  • DTR_studio
  • News
Instagram Linkedin
  • esp
  • eng
  • esp
  • eng

Palacio Yanduri 

Reforma de Palacio de Yanduri en Sevilla

El Palacio de Yanduri, ubicado en la Puerta de Jerez de Sevilla, constituye una de las piezas más representativas de la arquitectura palacial de comienzos del siglo XX en la ciudad. Fue construido entre 1901 y 1904 por encargo de los marqueses de Yanduri, siguiendo una concepción de clara inspiración francesa. Su implantación se produce sobre los terrenos ocupados por el antiguo palacio de los Vicentelo de Leca, que albergó la Intendencia Militar y en el que nació el poeta Vicente Aleixandre en 1898.

El proyecto fue iniciado por Antonio Rey y Pozo y finalizado por Jacobo Galí y Lassaleta tras el fallecimiento del primero. El edificio responde a un lenguaje neoclásico de influencia francesa, caracterizado por la sobriedad compositiva, la rigurosa simetría de sus alzados y la incorporación de elementos ornamentales de gran refinamiento, que remiten a los modelos académicos europeos tanto en su configuración volumétrica como en el detalle arquitectónico.

A lo largo del siglo XX, el inmueble ha experimentado diversas transformaciones de uso que han contribuido a la complejidad de su lectura histórica. Durante la Guerra Civil Española, fue utilizado como cuartel general de las tropas sublevadas y residencia ocasional de Francisco Franco en sus estancias en la ciudad. Posteriormente, acogió funciones educativas, conventuales y administrativas, hasta su adquisición en 1987 por el Banco Santander, que lo mantiene en la actualidad como sede territorial.

Año del proyecto 2020

Año construcción 2022

Superficie construida 3.973 sqm

Ubicación Puerta de Jerez 1 , Sevilla

Autores proyecto DTR_studio arquitectos (José María Olmedo/José Miguel Vázquez)

Dirección obra DTR_studio arquitectos

Constructor IYCSA

Clientes Banco Santander

Publicado

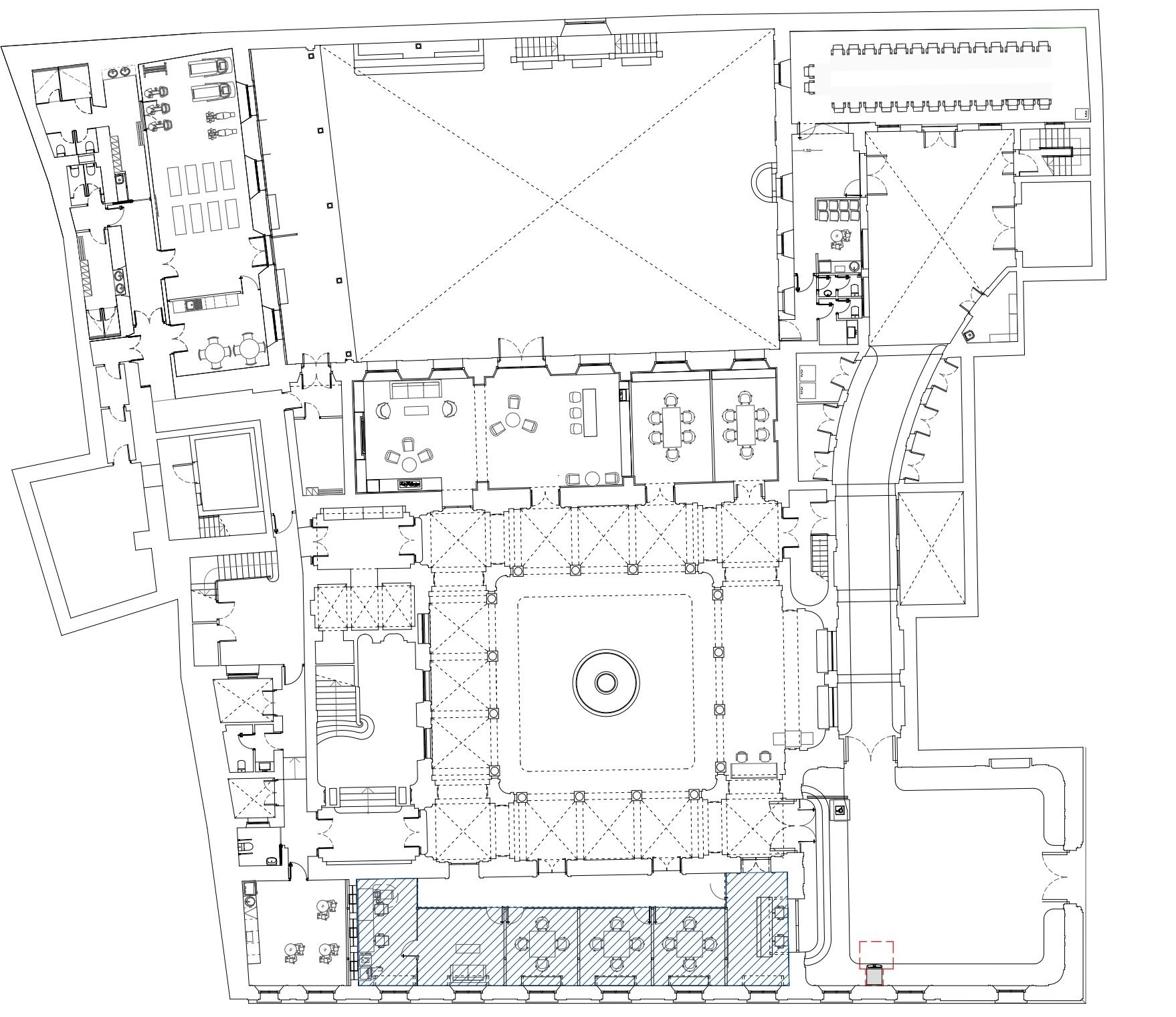
La intervención de rehabilitación se plantea desde una estrategia de inserción programática respetuosa, orientada a la adaptación del inmueble a su uso contemporáneo como espacio administrativo y de atención al público. La actuación se centra en la adecuación de la planta baja y parte de la planta primera para albergar áreas de atención al cliente, así como en la renovación integral del resto de la planta primera, destinada a los servicios centrales de la territorial.

Uno de los principales desafíos del proyecto radica en la compatibilización entre la implantación de la imagen corporativa propia de una entidad bancaria y las condiciones patrimoniales singulares del edificio. Esta tensión se resuelve mediante una estrategia de intervención equilibrada, en la que los nuevos elementos se conciben como sistemas autónomos, reversibles y claramente legibles frente al soporte histórico.

Conceptos del proyecto

Uno de los principales desafíos del proyecto radica en la compatibilización entre la implantación de la imagen corporativa propia de una entidad bancaria y las condiciones patrimoniales singulares del edificio. Esta tensión se resuelve mediante una estrategia de intervención equilibrada, en la que los nuevos elementos se conciben como sistemas autónomos, reversibles y claramente legibles frente al soporte histórico.

En planta baja, la operación adquiere especial complejidad al requerir la incorporación de espacios de reunión con elevados estándares de privacidad, en un contexto sometido a estrictas condiciones de protección patrimonial por parte de la administración competente. La solución adoptada se articula mediante la inserción de “cajas” funcionales, concebidas como piezas independientes dentro del espacio existente. Este recurso permite una intervención precisa y no invasiva, capaz de introducir nuevos usos sin alterar sustancialmente la espacialidad original, garantizando simultáneamente las condiciones de confort, aislamiento acústico y privacidad exigidas por el programa.

Palacio Yanduri

Reforma de Palacion de Yanduri en Sevilla

La intervención de rehabilitación se plantea desde una estrategia de inserción programática respetuosa, orientada a la adaptación del inmueble a su uso contemporáneo como espacio administrativo y de atención al público. La actuación se centra en la adecuación de la planta baja y parte de la planta primera para albergar áreas de atención al cliente, así como en la renovación integral del resto de la planta primera, destinada a los servicios centrales de la territorial.

Uno de los principales desafíos del proyecto radica en la compatibilización entre la implantación de la imagen corporativa propia de una entidad bancaria y las condiciones patrimoniales singulares del edificio. Esta tensión se resuelve mediante una estrategia de intervención equilibrada, en la que los nuevos elementos se conciben como sistemas autónomos, reversibles y claramente legibles frente al soporte histórico.

En planta baja, la operación adquiere especial complejidad al requerir la incorporación de espacios de reunión con elevados estándares de privacidad, en un contexto sometido a estrictas condiciones de protección patrimonial por parte de la administración competente. La solución adoptada se articula mediante la inserción de “cajas” funcionales, concebidas como piezas independientes dentro del espacio existente. Este recurso permite una intervención precisa y no invasiva, capaz de introducir nuevos usos sin alterar sustancialmente la espacialidad original, garantizando simultáneamente las condiciones de confort, aislamiento acústico y privacidad exigidas por el programa.

 

Año proyecto 2020

Año construcción 2022

Superficie construida 3.973 sqm

Ubicación Puerta de Jerez 1 , Sevilla

Autores proyecto DTR_studio arquitectos (José María Olmedo/José Miguel Vázquez)

Dirección obra DTR_studio arquitectos

Constructor IYCSA

Clientes Banco Santander

Publicado


Sede de Granada

Calle Violetas 18. 18008 Granada
dtr@dtr-studio.es | 958222957

Sede Costa del Sol

Plaza del Santo Niño. 29480 Gaucín
dtr@dtr-studio.es | 952151364

Redes Sociales

Instagram
Linkedin

© DTR_studio. Todos los derechos reservados.

Aviso Legal | Política de Privacidad | Política de Cookies